Вихревые топки были разработаны в 30-х годах для сжигания фрезерного торфа А. А. Шершневым. В этой топке сжигание фрезерного торфа производится без предварительной подсушки и размола.
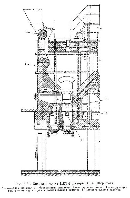
На рис. 5-31 показана вихревые топки ЦКТИ системы А. А. Шершнева. Топочная камера этой топки имеет специальную конфигурацию: в передней части топки расположен порог, на который направлен поток вторичного воздуха, выходящий из сопл, размещенных в нижней части топки. Топливо подается питателем в щель или щелевую горелку вместе с первичным воздухом. Топливо, падая на передний скат топки, встречается с потоком вторичного воздуха и как бы сортируется по размерам фракций. Мелкие фракции сразу же подхватываются воздухом и, воспламенившись, сгорают в верхней части топочной камеры во взвешенном состоянии. Крупные фракции скатываются по передней стенке воронки, но, дойдя до ее устья, подхватываются потоком воздуха и направляются к порогу. Подсушенные, более легкие частицы выбрасываются в среднюю часть топочной камеры и сгорают во взвешенном состоянии. Влажные тяжелые частицы возвращаются к устью воронки и снова подхватываются потоком воздуха. Таким образом крупные частицы многократно циркулируют вверх и вниз, размельчаясь и подсыхая. Циркуляция этих частиц происходит до тех пор, пока поток воздуха не выбросит их в среднюю часть топочной камеры, где они сгорают. Комочки и куски топлива, которые не были подхвачены потоком воздуха, догорают на решетке с поворотными колосниками, расположенной под воронкой.
Первичный воздух подается в количестве 10%, вторичный в сопла - около 80% и под решетку - около 10%. Скорость выхода вторичного воздуха из сопл 20-25 м/с. Вихревые топки системы А. А. Шершнева применяются для парогенераторов производительностью до 35 т/ч.
Вихревой метод сжигания используется в настоящее время в циклонных топках с горизонтальными или вертикальными циклонами. Для промышленных парогенераторов н водогрейных котлов применяются циклонные вихревые топки с горизонтальными циклонами при сжигании твердого, жидкого и газообразного топлива.
Основными преимуществами циклонных топок, особенно важными для промышленных и отопительных котельных установок, являются: возможность работы с удельными нагрузками топочного объема до 2000 кВт/м3; сжигание топлива с низкими коэффициентами избытка воздуха при использовании простых средств автоматического регулирования процесса горения; уменьшение уноса несгоревших частиц топлива, что способствует снижению загрязнения конвективных поверхностей нагрева.
Циклонные топки различных конструкций состоят из двух камер: вихревой высокофорсированной камеры горения и камеры охлаждения. Камера горения представляет собой цилиндр с тангенциальным сосредоточенным или рассредоточенным вводом топлива и воздуха. Камера охлаждения имеет призматическую форму. Стены циклонной камеры горения выполняются из ошипованных экранов, покрытых огнеупорной обмазкой, а стены камеры охлаждения имеют неутепленные гладкотрубные или плавниковые экраны.
В результате выполнения комплекса исследовательских и конструкторских работ в ЦКТИ разработана высокофорсированные вихревые топки для сжигания твердого, жидкого и газообразного топлива, принципиальная схема которой показана на рис. 5-3. Топка состоит из вихревой камеры горения и камеры охлаждения, соединенных между собой диффузором или каналом прямоугольного сечения.

Вихревая камера горения представляет собой горизонтальный охлаждаемый цилиндр, выполненный из ошипованных экранных труб, покрытых огнеупорной карборундовой обмазкой. Подвод топлива и воздуха производится через прямоточные горелки, расположенные тангенциально. В нижней части топки находится устройство, называемое лёткой, для удаления шлака в жидком состоянии. Камера охлаждения имеет прямоугольное сечение и полностью покрыта цельносварными экранными панелями, что позволяет работать под наддувом при избыточном давлении в топке до 5000 Па.
Наиболее подробные испытания вихревые топки в промышленных условиях проходили при сжигании мазута и природного газа под парогенератором производительностью 40 т/ч. В результате испытаний установлено, что при суммарной удельной нагрузке топочного объема 600 кВт/м3 (камера горения совместно с камерой охлаждения) сжигание мазута и газа осуществляется с низким коэффициентом избытка воздуха на выходе из топки 1,02-1,03 без потерь от химической неполноты горения. Карборундовое покрытие камеры горения работает устойчиво и не требует ремонта в течение длительного времени (около 7000 ч). Сжигание с низкими избытками воздуха и высокотемпературной обработкой золы снижает коррозию и загрязняющие свойства продуктов сгорания.

На рис. 5-32 показан циклонный предтопок, установленный под водогрейным котлом. Камера горения выполнена в виде цилиндра диаметром 1250 мм. Основной (первичный) воздух в количестве 75-80 % всего необходимого для горения воздуха подводится через одно тангенциально расположенное сопло. Скорость выхода воздуха из сопла около 70 м/с. Для поддержания постоянной скорости воздуха при переменных форсировках топки установлен языковый шибер. Остальной воздух необходимый для горения, в количестве 20-25 % подводится через улиточный закручиватель по оси камеры. Предтопок выполнен из двух цилиндрических обечаек, охлаждаемых сетевой водой. Циклоны не имеют защитной карборундовой футеровки, однако сетевая вода, подаваемая со скоростью 1,2 м/с, надежно их охлаждает. Перпендикулярно движению первичного воздуха установлены две газомазутные горелки. Такое расположение горелок направляет поток распыленного мазута к центру циклона, что исключает коксование его стенок.
Опыт эксплуатации и испытания вихревых топок показали, что она надежно работает при сжигании газа и мазута с коэффициентом избытка воздуха на выходе из топки 1,05-1,07 без потери теплоты от химической неполноты горения. КПД котла, оборудованного циклонными предтопками, был на 5-7 % выше КПД водогрейных котлов обычного типа, что вполне компенсирует повышенный расход электроэнергии на дутье. Удельная нагрузка объема камеры охлаждения составляла примерно 2000 кВт/м3.